top of page
Create Your First Project
Start adding your projects to your portfolio. Click on "Manage Projects" to get started
McKinley Park Environmental Center
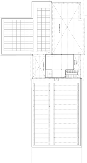
Situated on the steep slopes of Pittsburgh’s Beltzhoover neighborhood, the McKinley Park Environmental Center is a place for the community to gather, learn, and celebrate. It acts as the starting point for the revitalization neighborhood, serving both visitors and locals. The environmental center acts as a gateway into the park, encouraging visitors to wander and discover nature. For a complete drawing set, see the link.
bottom of page





























